As soon as we hear these two concepts together, we automatically assume that they are closely related. To a certain extent, space and place base their meaning on the immediate physical reality in which we move and live in. However, many experts from various fields, including physicists, geographers, and philosophers, have studied the scope and nature of this relationship. Agnew (2011) summarized the evolving ideas and distinctions between space and place in a significant way in his episode for the SAGE Handbook of Geographical Knowledge, tracing this evolution back to the seventeenth century, which he believes was the first time this topic was discussed. For this review, Agnew emphasizes the ideas of notable historical figures, such as Isaac Newton, who views space as an entity whose existence is independent of the elements and events that occur in it. In contrast, Gottfried Leibniz advocates the opposite viewpoint, in which space is entirely dependent on the relationships between the elements mentioned above. It emerged in the 1970s as a development of the Leibniz approach, the idea that space is created by economic processes and whose role is subject to change based on capital production and technological advancement. Alongside this historicist approach, another viewpoint on the subject surfaced, one that was more focused on the behavior—that is, on the mental processes by which humans construct and accept places. Concerning this, there was a growing interest in how individuals experience and interact with space, and with this, the connection between places and identity.
I was particularly interested in this final perspective on the study of place and space. For artists, particularly those who are in the process of creating individual projects, I think it is a powerful idea to relate the creation of identity to place. Identity is a very complex concept that can be summed up as a "notion of self" (Ghassan and Bohemia 2011, 3). This self mentioned above is greatly impacted by the environment because we build our identity by interacting with it and coming into contact with a moral and value system that shapes our behavior (Schöpflin, 2001). In addition, identity is always changing because it depends on context; people adjust to "relate their self-perceptions to positive or negative beliefs that certain behaviors will produce favorable or unfavorable outcomes'' (Mälmstrom and Öqvist 2021, 5).
Space, then, is a crucial component of context since, according to aforementioned Leibniz's perspective, it is defined by the interactions and activities of the structures and people that inhabit it. In other words, space is the frame within which we create our identities. This framework can change and become more specific depending on the context, carrying with it unique symbols and meanings, leading to the development of multiple identities to conform to the external representation of specific roles within a social structure (Stryker and Burke, 2000)
As I indicated in the chapter's introduction, artists work in a variety of spaces, especially performing artists, each with its own distinctive characteristics. How we approach these spaces is a great example of the difference between place and space.
Numerous experts, particularly philosophers, have discussed this distinction and put forth several hypotheses. Nonetheless, the phenomenological approach was the most appealing to me since, despite having a distinct origin, phenomenology has important characteristics in common with the artists—John Cage and Llorenç Barber, for example—who served as my inspiration to embark on this project.
Phenomenology is not regarded as a system, but rather as a practice, a way of departing from established philosophical doctrines in order to study various topics as they manifest to our consciousness (Moran, 2008). In short, phenomenology was an attempt to “reinvigorate philosophy by returning it to the life of the living human subject” (2008, 5). This idea kind of brought to mind John Cage's innovative artistic intent on creating his works via the lens of Zen philosophy. He used daily life as the main source of inspiration, trying in this way to combine his artistic work with his own spiritual journey and meditation. The ultimate goals of the two approaches are nonetheless distinct with phenomenology emphasizing the subject and his experience while Zen philosophy follows a similar route but gradually eliminating the self and the ego.
When I read this excerpt of the classic “ A room of one’s own” by Virginia Woolf, I felt that she perfectly captured what I was experiencing during my first few days in the Netherlands. I arrived without a place to live, in a foreign country, a new conservatoire, new colleagues. In summary, I felt out of place.
All of this affected my approach to my instrument, and it left me to wonder how other musicians, and other creatives, can separate their personal lives from their work, their inspiration.
I’m aware that in this book, Woolf reflected on the historical position of women and how their inability to be independent stifled all of their creative potential. However, I particularly connected when she emphasized the private space and the possibility of having a room, referring to the book's title and the final words of the citation I used.
I’m not trying to appropriate a feminist discourse that doesn’t correspond to my experience, since I am a cis-male, but I do think that Woolf verbalized a situation with which many of us, to some degree, can relate. As I mentioned above, the fact I started my master’s studies without a room or a private space, intensified this natural feeling of insecurity that comes with moving to a new environment. Aside from the physical necessity of finding a place to live in order to be able to stay in The Hague, I felt emotionally overwhelmed, and to some extent, unable to continue with my studies. Fortunately, and thanks to a personal work of relativisation and some luck, I was able to find a place (which was not simple) and get out of that problem.
This circumstance—far from being the norm for all international students—had a significant impact on me. Perhaps it was because it was my first time moving abroad or because I was having such a difficult time finding housing.
“For fiction, imaginative work that is, is not dropped like a pebble upon the ground, as science may be; fiction is like a spider’s web attached ever so lightly perhaps, but still attached to life at all four corners. Often the attachment is scarcely perceptible (...)
But when the web is pulled askew, hooked up at the edge, torn in the middle, one remembers that these webs are not spun in mid-air by incorporeal creatures, but are the work of suffering human beings, and are attached to grossly material things, like health and money and the house we live in”
As a consequence, I started to wonder why this affected me personally and professionally, and came to the conclusion that it wasn't the first time I had felt out of place with my instrument. In fact, it occurred more frequently than I initially believed.
As musicians we encounter constantly unfamiliar spaces, and some of them may even feel unsafe—not because they're dangerous, but rather because they're filled with unpleasant emotions like expectation, criticism, and frustration, among others.
I’m aware that these connotations are a reflection of my own emotions, but at the same time, I thought back to moments when I felt the exact opposite, that is, focused, energetic, connected with what I was playing, and I realized that knowing the space I was in, not just the performance space, but also the building itself, the context that this space was holding -audition, try-out, lesson-, the city, etc, had an impact on my playing.
These realizations caused me to consider ideas like safe space, space appropriation, the concept itself, how it differs from place, and, of course, performance space. I wanted to investigate them more in depth in order to transfer the knowledge to my art, which I tried to manifest in this instance as an interdisciplinary performance. Space, in my opinion, is a potent concept from which to draw inspiration because it can be studied from a variety of angles, including those of architecture, anthropology, sociology, and, of course, art. Because of this, there is an increasing trend toward performances or artistic works that are considered site-specific, or even the complete opposite, but always taking into account the space to produce dissonances or concordances, that is, to use it as an artistic resource.
Although phenomenologists have various takes on how space is created, they all begin by understanding the subject—the lived body—as a starting point to comprehend space. Our body is the primary vehicle with which we explore the world, or as Edward S. Casey affirms is “the enactive vehicle of the mediatrix between place and self” (Casey 2001, 687 qutd in Schatzki 2001, 699).
Space is created after our interaction with our surroundings, that’s why phenomenologists, such as Maurice Merleau-Ponty use the concept of “being-in-world” to refer to the “primitive openness of human subject or consciousness towards the world through the intermediary of body” (Shengli 2008, 133).
As a consequence, the concept of space is inevitably subjective and determined not only from our own interactions but also in a reciprocal way, that is, “through the actions of the world on our bodies” since “we are always already engaged in the world and are acted upon, even as we act” (Lutterbie 2001, 127). Due to this emphasis on subjectivity, many philosophers and geographers were able to distinguish between space, which is a more intellectual or even abstract concept, and place, which would be regarded as the conscious experience of the "inhabitation of space, a being-in-space" (2001, 128).
Therefore, the self and places are connected in a symbiotic relation of existence since our identities are formed by the experiences our lived bodies have in these locations, and at the same time, each place's meaning is derived from the people who inhabit it. In other words, “each is essential to the being of the other (...) there is no place without self and no self without place” (Casey 2001, 684).
Although there are many different and intricate ways that places shape who we are, in general, we need time—a pause in our movement through spaces—to fully embrace our experiences in them. As Tuan (1977, 138) puts it, "pause makes it possible for a locality to become a center of felt value."
I believe that one possible location that perfectly conveys this need for time is our rooms—spaces that we use for specific kinds of interactions. Since rooms are typically meant to be private, we have the freedom to modify them to suit our needs, to transform them (Vidal and Pol, 2005), creating in this way, an intimate space, our own place. The way we approach rooms may reflect both the externalization of who we are and the opportunity to take a break from all the other identities we use to get through each day. We don't search for expectations to be fulfilled in intimate spaces; rather, they are "places of nurture where our fundamental needs are heeded and cared for without fuss" (Tuan 1977, 137).
According to Coessens, an artist has to adapt their work to the conditions of the surrounding environment, which has a certain impact on the artist's output. On the other hand, these limitations can act as sources of inspiration for creative work and offer opportunities for unexpected outcomes. In regard to this, she mentions a very relevant concept, the theory of affordances. This theory, presented back in late 60s by the psychologist J.J Gibson, centers on the concept of “affordance” which is defined as the “actionable properties that emerge through interaction between the world and an actor” (Brown 2020, 00:35).
This definition emphasizes the two sides of the concept, that is, “affordances are properties taken with reference to the observer” (Gibson 1979, 137), meaning that affordances will always be related to their respective element within the environment, but at the same time, they need to be perceived by the subject depending on their needs
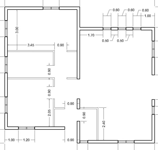
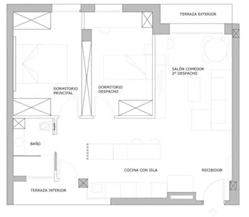
After researching about the appropriation of space, I realized that I was personally adopting a passive attitude, letting external factors such as other people, my apartment, etc, to determine my impressions of my immediate environment.
Following the notion that space, and particularly place, is created through a reciprocal relationship between the subject and their environment, I decided to use this project as a personal process to establish a connection with the new environment surrounding my master's studies.
In the article “The Web of Artistic Practice: A Background for Experimentation” (2014), Kathleen Coessens proposed a very interesting concept, one that is mentioned in the title, the artistic web of practice which she describes as “the tools of the artist, knowledge, expertise, experiences, and actions present in his or her creative endeavour” (2014, 69). She separated all of this background information into multiple categories: personal knowledge, cultural-semiotic codes, interactivity, embodied artistic know-how, and the ecological environment. While these dimensions focus on various facets within the artistic web, they ultimately aim to emphasize the ways in which cognitive and social processes invariably impact artists; in other words, they humanize artistic labor and establish a direct connection between it and the dynamics that define our social interactions and human development. This network is clear evidence that, despite our best efforts to regulate artistic aesthetics and outcomes, we must never lose sight of the fact that, at the core of every artist, lies a human being, whose particular temperament and environment will shape their creative process.
Among the above-mentioned categories, I want to highlight two of them. First, and the most obvious for this project, is the ecological environment.
Affordances are situated in a position between the dichotomy objective-subjective, or as Gibson remarks, affordance “ is equally a fact of the environment and a fact of behavior. It is both physical and psychical, yet neither. An affordance points both ways, to the environment and to the observer” (1979, 129).
Since affordances can be manipulated during the creative process to achieve specific outcomes, all of the possibilities that come with them are potent tools for artistic work. For this purpose, it is important for the artist to open his sensibility and awareness towards his surroundings. (Coessens, 2014).
By our own experiences, we create what Michael Polayni refers to as tacit knowledge, but more significantly, the subject of those experiences is the one who creates it. (Ray, 2009).
In conclusion, the subject itself—either through their personality and areas of interest or through the culture and environment in which they are raised—influences the resources and knowledge we use for creative endeavors. (Coessens, 2014).
After some retrospective, I realized how my background led me to this type of project. Though music was the artistic medium I chose to pursue further, I have been involved in other artistic disciplines, particularly during my adolescence. However, because of my irregular dedication and my own difficulty in following –what I once perceived as particularly rigid– the classical technique, my experience with classical music hasn't been the best.
After taking into account all of this information, I decided to use the interaction with my immediate space as the primary source of inspiration. I could then combine all of my creative efforts for this project and my environmental assimilation into a single process. Ultimately, Coessens argues for the notion that art, once it exists, "creates new meanings, adds other meanings, and changes the scope and the focus proper in relation to a specific environment" (2014, 78). Because of this, I felt that I could connect with my space when I approached it from an artistic perspective.
The second category that I wanted to focus on is personal knowledge. This dimension refers to the knowledge that “remains unarticulated and a-critical, of which the “knower” has only a subsidiary awareness” (2014, 73)
After attending the lessons of Daisetz T. Suzuki at Columbia University from 1949 through 1951, he embarked on a journey towards a loss of “ego, likes and dislikes, and to instead welcome the moment without the intervention of intention or desire, to transcend language, conceptual thought, and in the process gain enlightenment” (Fetterman 2010, 17).
Since Cage avoided incorporating any of his personal taste into the pieces, his use of chance operations and indeterminacy notation makes their theater pieces excellent illustrations of the idea mentioned above.
That being said, the theatrical quality of the pieces and their content itself, rather than their technical features or construction, are what really impacted me.
For this reason, along with what I believe to be a special sensibility, I have always found myself drawn to musicians and artists who have questioned and rethought the conventional notion of music. Several composers who have left an impression on me and became part of my personal knowledge use space interaction as an artistic tool for their production.
John Cage, one of the most relevant composers of the XXth century due to his innovative approach to music, tried to connect his work with spirituality.
He was an enthusiastic follower of Zen philosophy, as I indicated in the previous chapter, which is characterized by complete acceptance and a particular interest in day-to-day existence and our encounters with the concrete and the ordinary.
According to Cage, theater offered the chance to combine sound and visual components, engaging the audience and performers' hearing and seeing senses. In this way, "one could view everyday life itself as theater" (Kirby and Schechner 1965, 50, qutd in Fetterman 2010, 21).
I still remember vividly his performance of Water walk on Italian national television in the year 1959.
He moved across the stage with such conviction, performing seemingly aleatoric movements and incorporating water in a variety of ways, including liquid, ice, steam, and rubber duck. The piano was present, but in contrast to the other activities, not much was done with it. It was also very powerful how he responded to the audience's laughter with no emotion at all, making it appear as though they were a part of the act.
The content of these pieces is so diverse, but what I consider the most relevant is his integration of events that are not traditionally considered art. In his controversial and most famous piece 4’33”, Cage questioned the concept of silence, and he decided to focus on the ambient and incidental sounds that were happening during the performance. In Water music, his first theater piece for piano and “radio, various whistles, a deck of cards, containers of water, a wooden stick, four piano preparation objects, and a stop-watch” ( Fetterman 2010, 25), there are specific moments in which the performer has to turn on the radio, having a random effect depending on the channel. This can lead to unexpected coincidences as happened during the performance of Margaret len Tang in 1988 in Rotterdam:
“At one point when she turned on the radio, the station announcer was talking about John Cage, who had been in Holland two weeks previous to her concert. The surprising coincidence was a delight to both Tan and the audience, and many afterward asked if she had planned it!” (2010, 28)
Although the theater piece's interaction with space doesn't seem particularly deep, Cage attempted to approach all of the layers that make them up with a very clear mindset, avoiding any division between art and life. I believe that he used this idea in two ways, both really inspiring for me. He chose to perform in classical settings for pieces like 4'33" and Water Music, which led to a significant dissonance between the audience's expectations and the performance itself.
It must be acknowledged, too, that some of the sounds generated by interacting with the items on stage were quite interesting.
His Theater piece nº1, inspired after his untitled event at Black Mountain College, I believe is even a further step to his notion of theatre. In these pieces, organized according to his conception of music as a temporal discipline, each performer decides a series of actions, and each of them have to be performed in their correspondent time.
The score is totally indeterminate, and that’s the reason the performances are totally different from each other. However, in all of them there are visual and sonorous elements happening, such as some occasionals instrumental playing, dancing, poetry, speaking, interaction with mundane objects, etc.
This approach to theater opened the opportunity to collaborate with artists of different disciplines or even amateur people, allowing all of the performers to experiment even with other activities that are not directly related to their original discipline. He created experiences in which there weren’t any expectations in terms of technique, and especially any narrative or visible connection between the events happening during the performance, since his ultimate goal was to let the performer and the audience construct their own meaning.
The City concerts are a clear reference of interaction with space. In order to compose, he interacts with the city, studying the characteristics of the bells and the layout of the bell towers, in addition to other aspects like the city's topography, history, and celebrations. Because he thinks that sound can convey meaning, he works primarily on these concerts with city residents, regardless of their musical background, since they will be the ones who will have the ability to connect to the messages and symbols that Barber gathered during his earlier field research for the composition process. In the end, he wants to focus on the social aspect of music, reconnecting it with the frenetic life of the city and proposing a communal experience.
This composer was equally prolific on smaller-scale projects, like his Taller de Música Mundana, where the open sensitivity that Coessens had previously mentioned was really visible. From this project, is quite relevant their Concierto de Papel (Paper Concert), in which multiple artists engage and investigate the sonorous and performative potential of such an ordinary object as paper,
This was a tool used by the Spanish collective Zaj, whose founder members –Juan Hidalgo and Walter Marchetti–were very close with John Cage. They decided to introduce his ideas to Spain while developing their own approach by performing very radical pieces on traditional stages and theaters. This made a significant impact on the audience, requiring them to shift their focus and extend their perception to assimilate the performance. (Riviere, 2021). In order to enable the "participants to be perceived and to perceive others as elements of the artistic event" (Lomnitz 2022, 60) the performers moved throughout the entire space. He is therefore indicating that both the performer and the audience share a common habitation of the space.
In consequence, he didn’t want to alter it for the sake of the piece, even with non-traditional stages. Using the space in such a direct manner, as well as the actions chosen by the performers, was Cage’s attempt to “declare and encourage awareness of the present moment” (Hellstein 2014, 66).
Apart from the undeniable importance of John Cage, I would like to briefly mention other cases that inspired me for their particular interaction with space.
Llorenç Barber (1948) is a good example of an eclectic composer. He researched and explored with the experimentalism of the XXth century second half, meaning that he is a good connoisseur of the work of John Cage, Zaj collective, composers around Darmstadt such as Stockhausen or Ligeti, minimalism, sound art, etc.
Inside his extensive production, I would like to highlight his City Concerts. These pieces are meant to be performed mainly with the bells of the churches or buildings of a certain city, although he likes to include other sound sources to enhance the aural experience of the auditors.
A Day in My Life (2011-2012), written by artist and philosopher Kathleen Coessens, whose article I cited at the start of this chapter, is another example that influenced the way I approached my project.
Coessens provided the participants with a text/score for this piece, which they were asked to read, interpret, and then search for a sounding outcome, "implying personal artistic actions of translation and transformation" (Douglas and Coessens 2017, 13).
The text/score proposes a series of actions with the intention to see daily life through an artistic lens, basically “the score is an invitation to create music out of life experiences—everyday materials, embodied and enacted in the now—” (2017, 14).
Although my methodology was different, this piece's concept is fairly similar to what I had in mind for my own project. Knowing about this piece helped me to understand better my intention or the necessity that I had to connect a personal experience with my artistic persona.
The musical outcomes of the participants were different from each other, as expected, since the intention of this piece is to point out the specific encounters with daily life that we have as individuals and how we manage to find an artistic connection with them.
In relation to this, when the participants had to come all together to create a concert to show the result of this experiment, there were some difficulties due to the visible differences in their interpretations of the text. Coessens observed that during the rehearsals there was a constant exchange between resistance and adaptation (2017).
A concert, a performance is the embodied representation of the artistic web of practice I mentioned in the previous chapter, and because of its dependency on an specific space-time frame, it can be treated as “an instance, a moment of concentrated artistic endeavor” (Coessens 2014, 62). But far from the idea that the performance is only determined by the enactment itself of the artistic work, we can also affirm that it is also influenced by the personal background of the artist, in which they explore, reflect and assimilate whatever they present on stage. (Coessens, 2014).
Consequently, an artistic work that is displayed in public is inextricably linked to a private space that existed beforehand, a “self-protected, hidden social position” (2014, 62) where the artist felt inspired, focused and free to use the resources that are a direct result of the various tacit dimensions that form our artistic web of practice.
Since this subject has been thoroughly researched and is the focus of much more specialized professionals, it is not my intention to further investigate it but rather provide a general overview and connection with the two previous chapters. Given that the performance act is a crucial component of what we do as musicians and, by extension, as performance artists, I think it's necessary to make a connection between what I covered in the first two chapters and this particular notion of space.
Stijn Brinkman in his research Navigating in Overlaps: Redefining Performance Space as Multi-Space(2022) proposes that the performance space is built over threes aspects: performer, audience and surroundings, and each of these can redefine and shape the space depending in how we approach them.
Out of these three aspects, I was primarily focusing on the performer, and the private side of the creative process. The subject's experience was used to address the other two, the audience and the surroundings, particularly the last one. However, I think it's detrimental to obviate the audience's significance in this because providing different ways to interact with and include the audience in the performance act has a direct impact on the performance space.
Our standard concert halls and theaters are built with large seating sections that are arranged with chairs facing the stage, representing the extent to which public presence impacts the space. This produces an imperceptible barrier between the performers and the audience, resulting in a division in their perspectives regarding the performance. Conventionally, the artist is expected to have an obvious proactive attitude as the carrier of the artistic piece, while the audience adopts a passive attitude as the receiver of the artistic proposals of the performers.
Therefore, both the disposition of the theaters and the expectations of the audience create a specific dynamic of product-consumer that influences the artistic output.
Nevertheless, experimental artists, such as the ones I already spoke about in the previous chapters, consider the performance space as a creative speculation concept, proposing changes not only in the physical sense of it, but also heading towards more conceptual approaches.
The moment we start a performance, we are creating a new time-space that differs from the one we experience in our daily life (Coessens, 2014). The time seems to be suspended, determined by the “embodied and gestural flexibility in the art work” (2014, 63), while the space seems to be an extension of the performer’s body, although, this is the specific case of pieces where the performer is always present on stage, turning into the center of the attention, and because of that, limiting, to a certain extent, the spatial awareness of the audience (Brinkman, 2022).
Because of this situation, we have the responsibility as performers to enhance the audience’s subjective experience of space, their being-in-place. To attain this goal, we must first set an example of being able to interact with our environment by seeing ourselves as spectators. Only then will we be able to discern where to focus our attention during the performance's creation.
In multiple pieces of John Cage, he proposes a constant movement of the performers around the space, as it happened
for example in the Untitled event in Black Mountain College, where the audience was regrouped in four triangles facing the center of the space, separating each by corridors in which the performers were able to move back and forth, and therefore, through the audience. In this way, he was trying to emphasize his presence, and his position as co-players of the performance.
With regard to Llorenç Barber and his City Concerts, he is viewing the performance space from the same perspective as Birkman (2022): as a multi-space where a number of spatial layers converge, each interacting to varying degrees and, most importantly, with individual flexibility, meaning that there’s more than one feeling of space.
Following the already mentioned Newtonian concept of space as one fully created after the interaction among the elements inside of it, it’s not only the performer but the audience and the surroundings as well who create the performance space.
Since Barber decided to work with a city as his performance space, he had to deal with a lot more layers to give the audience the most effective experience possible. This objective comes from his fear of betraying the "illusions of the community" (Barber, 2020) that he awoke after infiltrating into the city's residents' daily lives.
For this reason, in addition to working in the score's composition, he also looks into other factors that may affect the performance space, such as topography, traditions, weather, etc—that is, the previously mentioned spatial layers.
Ultimately, Barber understood that the performance space was malleable and that, in his instance, because he was performing in an open environment, outside influences were ever-present.
In summary, the performance space is as flexible as we propose as artists, and for that we need to take care of the three elements that I mentioned before: performer, audience and surroundings.
It's not necessary to defy every convention when it comes to the performance space. On the contrary, as I have shown in the case of John Cage or with Zaj collective, the traditional performance space can also be a powerful instrument when the audience is seated in front of the stage and is presented with a performance that challenges their passive role and provokes a conflictive but intense reaction.
On the other hand, we can take things a step further and suggest performances in which the audience is positioned between the performers, in a different place not traditionally considered a stage, or even in front of an audience that is unaware that they are attending a performance.
These all serve as excellent illustrations of how performance spaces are intended to be creative environments.
Continue to 2. Creative process

















