"It's always important to have some edge between order and chaos. If you do too much order, then it's finished, it's not good. If it's too much chaos, it's too much, you cannot work anymore, it's too much ideas and things." - Anselm Kiefer
"Moving swiftly between different arenas like politics, architecture or commercial design is what I would consider definitive of my generation. I am looking at reality and playing fast and loose with it." - Sarah Morris
"What I make has to be positive and seductive. Instead of rotting, the characters in my work are crystallizing. This makes the narratives of the pieces move towards life rather than death." - David Altmejd
"The question for me has always been, 'Who do you think you are?' The desire to be someone else, to play a part, to take on a role, to be an understudy is either part of an insecurity or a huge ego." - Richard Prince
"I like keeping my work open that it can be interpreted on different levels. Art can't be compared with journalism; it can't discuss concrete issues." - Mona Hatoum
"It's a person who creates these images and this person is of course a political person." - Thomas Ruff
Schoenmakers was a Dutch philosopher who influenced Modrian. Schoenmakers argued that nature, as much as lively and idionsyncratic as it is, basically functions with regularity, with an almost plastic regularity. Modrian searched for the expression in the plastic arts of certain relationships found in the mutability and regularity of nature. Inspired by Modrian, De Stijl did not limit itself in painting, but aimed at encompassing architecture, furniture design, and the graphic arts, at the same time following the general principles of the Dutch tradition, clarity and simplicity, as expressed in Modrian's work. Apart from materials, colour was an important element, because art is the impression that colour provokes in the senses. Following this tradition, the Bauhaus further advanced the synthesis of all the plastic arts into a new, architecturally inspired, movement of making and building activities.
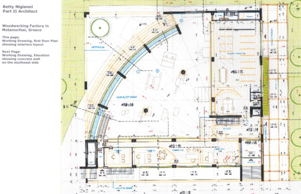
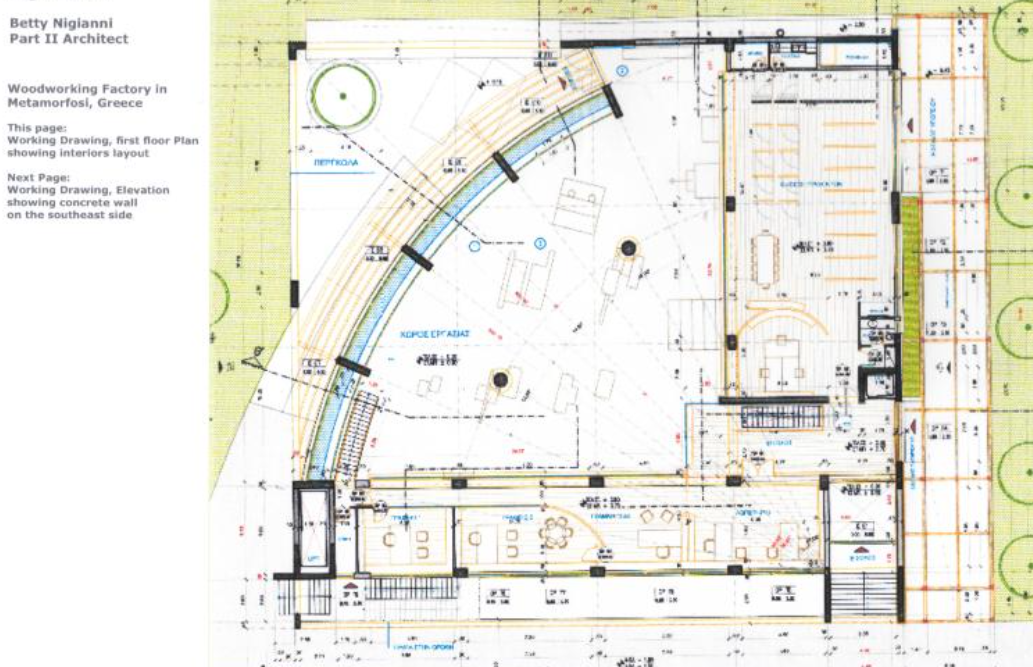
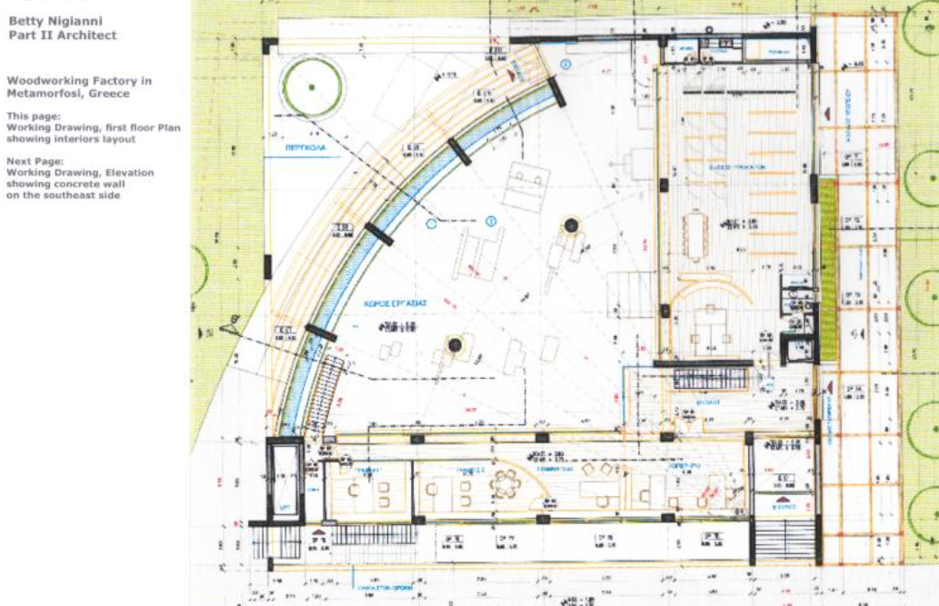
Original design (1995-96) proposal for a small group of houses for scientists to work in an abandonned industrial site, connected to the well-known Lavrio mining site in the outskirts of Athens. The design approached the house as a space-object system for users with specific lifestyles.
Humidity levels that reach 100% cause metal to rust extremely fast.
Each clam provides around 8 grams of protein; or 15% of the daily recommended value.
Western hemlock bark is 25% carbohydrates.
The average individual should drink about 3 liters of water everyday.
Boiling water for 15 minutes kills most vegetative bacteria and inactive viruses.
When placed between the bottom of the sun and the horizon, each finger represents approximately 15 minutes of daylight.
Sphagnum Moss contains iodine and many believe it can purify water.
The 11 lb coho salmon will yield about 5 libs of meat.
In extreme conditions, an individual can die after 3 days without water.
Tracking refers to the ease at which a canoe can be paddled along a straight line.
A ferro rod is a device for starting fires that gives off hot sparks when struck.
Smooth river stones of sedimentary or sandstone work best for sharpening because of their tiny abrasive grains.
Hypothermia occurs when the body loses heat faster than it can produce it.
Tanning are organic matter formed as a result of water passing through levels of decaying vegetation.
Lingcod, halibut and a variety of rockfish are all bottom feeders.
Butter clams can grow up to 5 inches in diameter.
1 butter clam contains about 6 grams of protein, the equivalent of 1 egg.
269,000 tons of plastic float on the surface of the ocean.
There are 5.25 trillion pieces of plastic debris in the ocean.
Without food, the body converts its body fat into usable energy.
Gill nets are vertical panels of netting normally set in a straight line.
In the fur trade, a trapline is placed along routes which animals regularly travel.
Mold spores need moist or damp areas to grow and reproduce.
Some molds have toxic effects ranging from skin irritation to immune system disturbances.
Bull kelp is the fastest growing plant in the world, averaging 7ft per day.
1 mouse is approximately 35 calories.
Birds tha ingest contaminated food or water can develop parasitic worms.
These worms can be fatal if eaten by humans.
Vitamin D promotes the health of bones and teeth and also supports the immune system.
Malnutrition and lack of vitamins and minerals can lead to muscle atrophy.
1 cup of fireweed leaves has 63% of the vitamin A that a human body needs every day.
Malnutrition can lead to tooth decay, gum disease, and tooth pitting.
Without boiling it properly, water has the potential to harbour parasitic bacteria.
A landing net is used to scoop the fish out of the water before they get off the hook.
The human body can absorb large amounts of calcium from fish bones.
The underbark, or phloem, of a tree moves sugars from the leaves to the rest of the tree.
A fire rod is a fire-starting tool made of ferrocerium.
A merganser is a fish-eating duck usually found on freshwater lakes and rivers.
From the TV series Alone, since 2015.
Gordon Matta-Clark's anti-architecture prioritised architecture's physical construction methods as an approach to redressing societal problems that he observed. Him and his anarchitects collaborators thought that there was already enough built; during his time, he witnessed "the heights of abandonned buildings, creaky piers and suburban houses" (Simon-Barallobre in Jenkins, 2004), in which he practiced cutting holes, splitting, slicing, tearing down floors and walls, to reveal the entire architectural process. Matta-Clark was led by his conviction that modern architecture was dehumanising, instead of meeting people's needs. His strong sense of the use of urban space fuelled his site-specific installations - where: "Almost anything could happen. Visiting a Matta-Clark sculpture demanded a certain level of courage", as Crawford (Jenkins, 2004) argues, at the same time challenging the common misconception that architects just build buildings (Martin in Jenkins, 2004).
Because of the extreme nature of the sites for his work, what has been left is the documentation: drawings and collages, photographs and films, which bear their own artistic merit. Comparing Matta-Clark's drawings to Piranesi, Martin (Jenkins, 2004) argues that his use of the montage device results in art pieces offering a different experience than the site-specific installations:
"We 're held in views that, if attempted to be constructed, would be impossible. Multiple perspectives. Dislocated elements. A centre seemingly present and forever unoccupyable."
However, perspective is nowhere destroyed, neither the representational quality of the object. The drawings rather propose directly alternate, than the actual object, realities, unmediated by client and use (Martin in Jenkins 2004). The films serve a different scenario, actually capturing space and offering a living experience of three-dimensional objects; as Matta-Clark explains:
"Films are more interesting to me because what happens with a movie camera in terms of capturing space is a lot more accurate. By moving a lens in space you can at least approximate some of the complexity. In the last piece (Conical Intersect), there was a whole issue about up and down, a real distortion of a sense of direction." (Jenkins, 2004)
Arguably, Matta-Clark's work unleashed the potential of the built environment, while liberating a whole new generation of architects and artists, who continued his legacy by working on site-specific installations, sculptures and new constructions. Besides the documentation, the only remains of the building cuts that have been destroyed, "the building fragments from the cuttings" (Crawford in Jenkins, 2004), speak for themselves.
Literally speaking, historically refugees take 'refuge' from extreme poverty, war, or political persecution.
For the Eleusis project (1996-97), the entrance was located approximately at the centre of the public square, which was given as the architectural site, in front of the archaeological site. A submerged below the ground circle, whose centre was placed at the approximate centre of the larger circle formed by the edges of the buildings around the square, is the open air theatre space. The museum and other facilities are grouped on a segment of the circle, towards the side of the most volumous buildings.The plate that serves as the museum's roof is the only viewable feature of the entrance, serving as a sculptural element for the square. A long open air ramp, covered by another plate just at the end leads to the centre of the circle, wihile another long open air ramp leads out of the circle and into the archaelogical site.
The design was conceived primarily in relation to the public square as the given site, aiming for the square's occupants to experience enclosure, when inside the open air theatre space, and exteriority, when they are at the ground level; the sumerged level serving a twofold function, as a theatre, but also as part of the public square. Since no other spatial element is viewable from the ground level, the plate that serves as a roof also functions as the sculptural element that gives the coordinates for the archaeological site's visitor. The design articulates architectural space, not as an object, but rather as a map of the public square as the given site for the project, as well as for the archaeological site.
Richard Serra's Rotary Arc (1987), adapting to the given site that is a public square, offers a similar approach. As Rosalind Krauss (2000: 140) notes: "It is not so much an object as it is the map of a fluctuating set of exchanges. Serra's plot underscores this resistance to a condition for the work as object, fixed and knowable before, or outside, of lived experience [...] 'Its form remains ambiguous', Serra insists, 'indeterminable, unknowable as an entity'". Nevertheless, Krauss (2000: 140) explains, this doesn't mean that we are affected in such a way as not to include the unknowable entity:
"into a system with a viewer who moves toward it intending to know, and uncovering through it the resonance of this intention. It does not matter from what angle such a viewer approaches the object, for there is no correct entry into this experience."
The Eleusinian mysteries was an ancient Greek festival to celebrate the reunion of Persephone, who was abducted by Hades, the god of death and the underworld, with her mother, Demeter, the goddess of earth and argiculture (γεωργία). Persephone was forced to live underground with the dead, after her abduction and until her reunion with her mother. The Greeks had complex ritual ceremonies on the Eleusis site once a year, as initiations for the cult of Demeter and Persephone. The entrance to the archaeological site, where these secret ceremonies took place in ancient Athens, was designed to iniate the visitor to the imagined experience of descending underground and ascending on the ground again, much like Persephone, inside the place of the rituals. This ancient site is in complete contrast to the lively modern public square of contemporary Elefsina.
The design intended to juxtapose two worlds, one lived and known, the other imagined and reconstructed from ancient ruins and archaeological objects found at the site. It is supposed that the rituals involved a dramatic reenactment of the myth (dromena), as well as the display of sacred objects used for the ceremonies (deiknumena), accompanied by commentaries (legomena). These supposed activities that formed part of the ancient rituals, in the contemporary design were hosted in the open air theatre and the museum.































